Ratgeber Automatische Schiebetür aus Glas – was in der Praxis wirklich zählt bei den elektrischen Schiebesystemen!
Eine automatische Schiebetür aus Glas wirkt modern, spart Platz und läuft dann auch im Alltag leise mit. In der Gastronomie hat sie dazu klare Vorteile: Gäste kommen bequem hinein, die Tür schließt sauber hinter ihnen – weniger Zugluft, weniger Lärm, ein ruhigerer Gastraum. Für Gewerbe gilt das Gleiche: barrierearm, hygienisch, verlässlich.
✎ Automatische Schiebetür aus Glas: was im Alltag wirklich zählt
Für eine individuelle Einschätzung Ihres Projekts können Sie hier jederzeit einen Termin online buchen.
Beratungstermin für Wintergärten, Sommergärten und Verglasungssysteme buchen
Inhaltsverzeichnis
Bei hoher Frequenz zeigt die automatische Schiebetür aus Glas ihre Stärken denn zuverlässige Sensorik (EN 16005), sanftes Anfahren bzw. Schließen, Not-Auf-Funktion sowie der Wunsch einer Anbindung an die Zutrittskontrolle, sind unschlagbare Argumente für Ladenbesitzer, sich für diese komfortablen Systeme zu entscheiden. Zusätzlich reduzieren angebrachte Dichtprofile als auch der Schleusenbetrieb bei den elektrischen Schiebetüren auch Heiz-/Kühlverluste. Die autmatik Türen bleiben zudem berührungslos hygienisch und sind im Service schnell wartbar.
Ein entscheidender Faktor bei der Planung ist die Barrierefreiheit, da schwellenlose Übergänge Stolperfallen für Gäste und Personal konsequent eliminieren. Ein Profi-Tipp für den Alltag ist, dass sich die Offenhaltezeiten exakt auf Ihren Durchgangsfluss abstimmen lassen, um den Energieverlust so gering wie möglich zu halten, ohne den Komfort dabei zu mindern. Für Bereiche mit hohem Aufkommen von Kindern oder Senioren empfehlen wir zudem ergänzende Seitenschutz-Sensoren, die den gesamten Bewegungsbereich der Glasflügel lückenlos absichern. So bleibt der Eingangsbereich nicht nur optisch ein Aushängeschild, sondern erfüllt auch technisch alle Anforderungen an einen reibungslosen und sicheren Betriebsablauf.

Automatische Schiebetüren, die elektrisch auf uns zugehen, überzeugen bei hoher Frequenz durch Komfort, Sicherheit, Energieeffizienz als auch Barrierefreiheit. Sie eignen sich ideal für Gastronomie, Shops, wie etwa bei diesen Blumenladen sowie gewerbliche Bereiche mit viel Publikumsverkehr. Es gibt Sie sowohl für Innen- als auch für den Außeneinsatz.
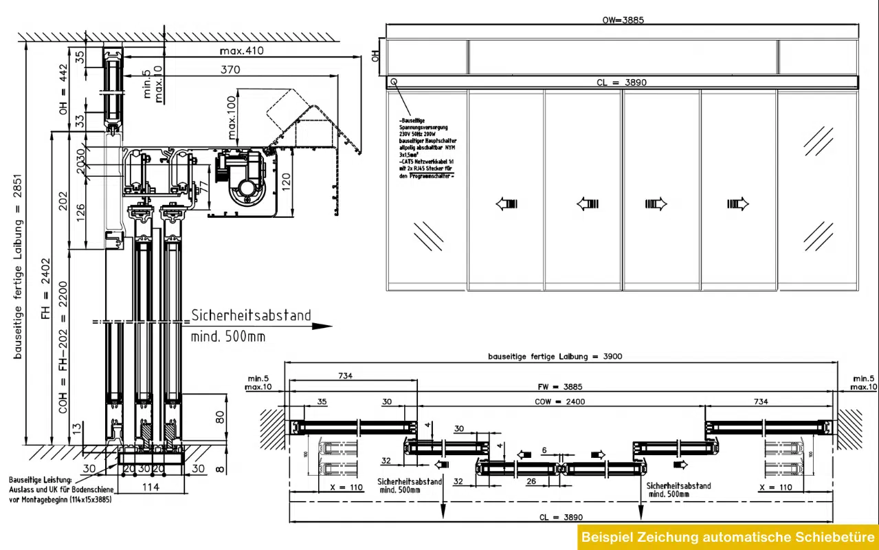
Das Bild zeigt einen detaillierten technischen Plan einer automatischen Schiebetüranlage. Links oben ist ein vertikaler Querschnitt der Türführung und des Antriebskastens mit genauen Maßangaben wie der fertigen Laibungshöhe von 2851 mm zu sehen. Rechts daneben befindet sich eine Frontansicht der geschlossenen Türanlage mit vier Glaselementen und Bewegungspfeilen. Im unteren Bereich zeigt eine horizontale Grundrisszeichnung die Anordnung der feststehenden und beweglichen Glasteile sowie Sicherheitsabstände von mindestens 500 mm.

Detaillierter technischer CAD-Plan einer automatischen Schiebetüranlage. Die Zeichnung illustriert die präzise Planung von Schnitt, Ansicht und Grundriss als Basis für eine fachgerechte Installation und Funktionssicherheit.
Bei Automatik-Schiebetüren fürs Ladenlokal zählt der Alltagstakt: Öffnungszeiten, Stoßzeiten ebenso wie der Kundenfluss bestimmen Antrieb, Sensorik und die lichte Breite. Denken Sie das Gebäude mit – barrierefreier Zugang, Fluchtweg/EN 16005, Brandschutzauflagen sowie ein vernünftiger Revisions- sowie Servicezugang am Sturz. Außerdem wichtig: Energie & Komfort – Nachtverschluss oder Schleusenlösung spart Heizkosten, berührungslose Bedienung bleibt hygienisch und schnell.
Klingt nach Details, macht aber jeden Tag einen Unterschied.

Automatische Schiebetüren aus Glas erfordern sorgfältige Planung. Faktoren wie Kundenfrequenz, Windzonen und Sicherheitsstandards beeinflussen Auswahl und Funktion – gut durchdachte Planung reduziert spätere Probleme sowie erhöht den Bedienkomfort.
Wer sich mit einem Ratgeber für automatische Schiebetür aus Glas beschäftigt, merkt schnell, es geht nicht nur um „geht von selbst auf“, sondern um ein abgestimmtes System aus Antrieb, Sensorik, Glas als auch Steuerung. Wenn diese Bausteine zusammenpassen, wird aus der Tür ein komfortabler, sicherer und zudem auch leiser Durchgang, der im Alltag fast unsichtbar seinen Dienst tut.
Hinweis: In öffentlich zugänglichen Bereichen gelten Sicherheitsanforderungen nach EN 16005 (personenbewegte Türen). Wir planen so, dass Personen- sowie Kantenschutz zuverlässig abgedeckt sind.

Automatische Systeme funktionieren dann richtig gut, wenn alle Komponenten sauber abgestimmt sind. Neben Komfort zählen vor allem Sicherheit, zuverlässige Sensorik, leiser Lauf und klare Betriebsarten. Je nach Einsatzort können Normen und Zusatzfunktionen wichtig sein.
In der Welt der Gastronomie gibt es Dinge, die im Hintergrund geräuschlos funktionieren müssen – ohne dass der Gast sie aktiv wahrnimmt. Doch oft klafft eine Lücke zwischen der Hochglanz-Planung und der ungeschminkten Realität im harten Service-Alltag. Eine automatische Schiebetür ist eben mehr als nur Glas und Motor; sie ist der unsichtbare Wächter über das Raumklima und die diskrete Trennung zwischen hektischem Pass und entspanntem Gastraum. Schaut man sich die „Fallakten“ misslungener Eingangsbereiche an, stößt man immer wieder auf dieselben Verfehlungen: Nervöse Sensoren, die bei jedem Kellnerschritt zucken, oder Zugluftschneisen, die den Komfort zur „Zwei-Klassen-Erfahrung“ herabstufen. Wer hier die Details ignoriert, riskiert ein System, das zwar modern aussieht, aber technisch nicht hält, was es verspricht. Die ungeschminkte Wahrheit ist: Erst die Feinabstimmung macht aus einem gläsernen Bauteil eine funktionierende Lösung, die weder den Betrieb stört noch die Heizkosten unnötig in die Höhe treibt.
Kleiner Praxistipp: Sensoren so setzen, dass die Tür nicht jedes Mal sofort öffnet, wenn die Bedienung hinter dem Tresen vorbeigeht. Winkel sowie Zonen feinjustieren – dann ist Ruhe und es zieht nicht so schnell.
Preise hängen von Breite, Glas, Antrieb, Sensorik sowie der Einbausituation der automatischen Türen ab. Damit Sie ein Gefühl dazu bekommen, nachstehend eine grobe Preisübersicht:
Dazu kommen – je nach Objekt – Seitenteile, Statik, Elektrozuleitung, Stahlunterkonstruktionen, eventuelle Durchbrüche sowie Abdichtungsarbeiten. Ein ehrliches Angebot gibt es daher erst nach Vor-Ort-Termin und Maßaufnahme, da zu viele Eventualitäten die Preise beeinflussen.
Kurzfassung für Suchende:
Automatik spart nicht automatisch Energie – Dichtigkeit sowie Öffnungszeit sind die Stellschrauben. Entscheidend ist, dass die Tür nur so weit öffnet, wie es der Durchgang wirklich braucht, und nicht dauerhaft „halb offen“ steht.
Sinnvoll eingestellt kombiniert eine automatische Schiebetür Komfort beim Hineingehen mit weniger Zugluft, weniger Kaltlufteinfall und damit auch geringeren Heizverlusten im Eingangsbereich.

Eine automatische Schiebetür spart nur dann Energie, wenn Dichtung, Öffnungsdauer genauso wie Schließgeschwindigkeit gut eingestellt sind. Windfanglösungen und zudem eine regelmäßige Wartung der Dichtungen verbessern zusätzlich Komfort sowie Effizienz.
Automatische Türen sollen bequem sein, aber am Ende zählt, dass niemand im Bewegungsbereich erschrickt oder eingeklemmt wird. Die EN 16005 ist dafür der wichtigste Rahmen, weil sie genau diese Risiken wie Quetschen, Scheren und Anstoßen abdeckt. Darum sind Schutzfelder vorne und seitlich kein Luxus, sondern das, was die Tür im Alltag erst wirklich sicher macht. Entscheidend ist, dass die Sensoren normgerecht ausgewählt, platziert und eingestellt sind.
Wenn die Tür auch Teil eines Fluchtwegs ist, wird das Thema Sicherheit noch wichtiger, weil sie dort für normalen Zugang und im Ernstfall funktionieren muss. Darum gehört eine Notentriegelung dazu, die man sofort findet, ohne lange zu suchen. Der Handbetrieb im Notfall ist Gold wert, aber nur wenn er gut erreichbar ist und eindeutig beschriftet ist. Viele Antriebe lassen sich zusätzlich mit einer Batterie für die Notöffnung ausrüsten, damit die Tür auch bei Stromausfall zuverlässig aufmacht.
Bei der EN 16005 wird eine periodische Wartung meist mindestens einmal pro Jahr gefordert und die Dokumentation gehört dazu, damit man im Fall der Fälle nicht diskutieren muss. Gerade in stark frequentierten Bereichen merkt man schnell, ob die Tür sauber eingestellt ist, weil sie dann ruhig läuft und nicht ruckelt oder nachdrückt.
Am besten läuft es, wenn Planung, Montage und spätere Betreuung aus einer Hand kommen, weil dann Sensorik, Schwelle, Zutritt und Verriegelung wirklich zusammenpassen.
Die Wartung empfehlen wir immer über den Fachhändler bzw. den Hersteller der Automatik-Schiebetür, weil dort nach einer klaren Checkliste geprüft wird und die passenden Einstellungen sowie Pflegematerialien verwendet werden.
Ein oft unterschätzter Punkt ist die Beschaffenheit des Fußbodens, da bereits minimale Unebenheiten dazu führen können, dass die Bodenführung schleift oder die Sensoren den Türlauf unterbrechen. Achten Sie bei Türen in Fluchtwegen unbedingt auf die gesetzlich vorgeschriebene redundante Steuerung, damit die Anlage auch bei Stromausfall oder im Brandfall sicher öffnet. Zudem sollte die Wahl des Glases (ESG oder VSG) nicht nur nach der Optik, sondern nach der täglichen Beanspruchung erfolgen, um im Falle eines Glasbruchs schwere Verletzungen zu verhindern. Ein kluges System verfügt zudem über eine sogenannte „Winter-Schaltung“, die die Öffnungsbreite bei Kälte automatisch verringert und so teure Heizenergie spart.
Planen Sie die Stromzuführung und notwendige Leerrohre für externe Signalgeber unbedingt vor dem Verputzen ein, um spätere Aufputz-Lösungen zu vermeiden. Eine feine Abstimmung der Sensoren schützt zudem vor unnötigen Öffnungszyklen durch Regen oder Schattenwurf, was den mechanischen Verschleiß des Antriebs massiv reduziert. Wer diese Details von Anfang an berücksichtigt, sichert sich eine langlebige Anlage ohne teure Nachbesserungen.
Was sonst noch wichtig ist:
… Sie haben eine Frage zum Thema? Senden Sie uns einfach eine E-Mail und wir werden Ihnen dann umgehend unsere Antwort mitteilen!
Wir kommen vor Ort, prüfen Windlage, Durchsatz, lichte Breite, Elektro – und schlagen eine passende automatische Türlösung vor. Glas, Oberfläche, Sensorik und Steuerung entscheiden wir gemeinsam – so, dass der Betrieb läuft und die Gäste sich wohlfühlen. Montage erfolgt mit eigenen Teams, sauber und fachgerecht.
Fenster-Schmidinger, Gramastetten
Tel.: +43 7239 7031 · office@fensterschmidinger.at
Beratung im Schauraum oder online Termin buchen.
Unterwegs in ganz Oberösterreich, plus angrenzende Bezirke in Niederösterreich, Salzburg, Steiermark (Richtwert: max. 1,5 Stunden Anfahrt).
Beratungstermin für Wintergärten, Sommergärten und Verglasungssysteme buchen
Wir freuen uns auf Sie!
Besucher dieser Webseite interessierten sich zudem für:
Gastronomie-Wintergarten
Haustüren-Verriegelung – Sicherheitssysteme auf höchstem Niveau
Alu Falttüren und automatische Schiebetüren für Hotel
Automatische Schiebetüren für Geschäft
Kaltwintergarten mit Schiebetüren auf Maß
Schmidinger / Gramastetten - Österreich
Schmidinger / Gramastetten Oberösterreich
Schmidinger / Gramastetten - Österreich
Schmidinger / Gramastetten Oberösterreich
Schmidinger / Gramastetten Oberösterreich
Schmidinger / Gramastetten Oberösterreich
Schmidinger / Gramastetten Oberösterreich
Schmidinger / Gramastetten-OÖ
Schmidinger / Gramastetten Oberösterreich
Schmidinger / Gramastetten Oberösterreich
max. 1,5h Fahrtzeit von unserem Standort zum Bauvorhaben
Für Salzburg - Niederösterreich - Steiermark prüfen wir Ihre Anfrage individuell.
Bitte senden Sie uns Ihre Anfrage per E-Mail und wir geben Ihnen umgehend Bescheid.
